物件詳細
一棟売りマンション
根岸★一棟売マンション 新着物件
★満室稼働中★土地約83坪★RC造3階建★
| 価格(税込) | 1億5,400万円 |
7.98% 【利回りについて】利回り=年間想定賃料収入(税込み)÷物件購入価格(税込み)×100
年間想定賃料収入は1年間に得られる満室時の想定賃料であり、 |
|
|---|---|---|---|
| 築年月 |
1988年4月
築38年 |
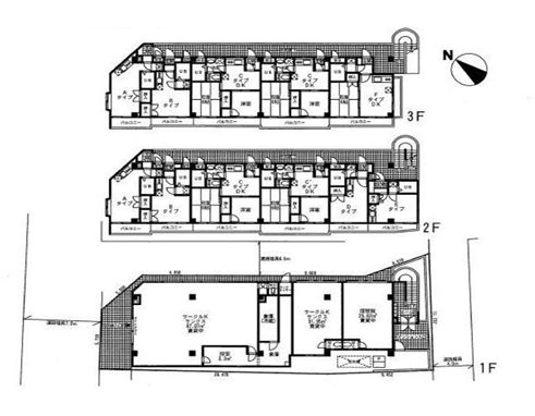
建物面積 | 493.08m2 |
| 土地面積 | 274.49m2 (83.03坪) |
構造 |
RC造
|
総戸数 | 14 戸 |
| 所在地 |
神奈川県横浜市磯子区岡村1丁目
|
||
| 交通 |
根岸線
「根岸」駅 徒歩22分
横浜市ブルーライン
「蒔田」駅 徒歩23分
|
||
物件画像
|
|
物件概要
| 物件種別 | 一棟売りマンション |
|---|---|
| 物件名 | 根岸★一棟売マンション |
| 所在地 | 神奈川県横浜市磯子区岡村1丁目 |
| 交通 |
|
| 売主の属性 | - |
| 売却希望時期 | - |
| 価格(税込) |
1億5,400万円 |
満室想定年間収入 | 1,229万7,000円 | 満室想定表面利回り | 7.98% |
|---|---|---|---|---|---|
| 建物面積坪単価 | 103万2,471円/坪 | ||||
建物
| 建築確認番号 | - | ||||
|---|---|---|---|---|---|
| 築年月 |
1988年4月
築38年 |
現況 |
賃貸中
|
総戸数 | 14戸 |
| 建物面積 | 493.08m2 | 構造 |
RC造
|
階数 | 3階建て |
| 専有面積 |
[最小] 1.00m2 [最大] 1.00m2 |
||||
| 間取り1 | - | 間取り2 | - | 間取りその他 |
店舗×3戸、住居×11戸
|
| 駐車場在否 |
-
|
全戸バス・トイレ別 | - | ||
土地
| 土地権利 |
所有権 |
私道面積 | - | ||
|---|---|---|---|---|---|
| 土地面積 | 274.49m2 公簿 | 建ペイ率 | 80% | 容積率 | 200% |
| 接道状況 |
-
|
地目 | 宅地 | ||
| 都市計画区域 | 市街化区域 | 用途地域 | 近隣商業地域 | 国土法届出 | - |
費用
| 固都税/年 | - | 損害保険料/年 | - | その他費用/年 | - |
|---|
取引条件等
| 引渡時期 | 相談 |
|---|---|
| 取引態様 | 仲介(先物) |
管理情報
| 備考 |
専有面積の最小・最大面積の数値はおおよその値でございます。 キーポイントは★【国交省認定】IT重説社会実験登録事業者です★全国からリモート契約します。 「物件更新日」はシステム上 自動更新されます。その間、契約済みの場合はご了承下さい。
|
|---|---|
| 物件登録情報 |
登録年月日:2026/04/16 次回更新予定: 2026/04/24 |
物件管理番号:00000000S264107
- 取扱い不動産会社
-
株式会社キーポイント
03-5958-1777
東京都 豊島区 池袋2-22-1
東京都知事(8)第61546号
- 問合せ営業所
-
株式会社キーポイント
条件が近いおススメ物件
| 種別 | 物件名 住所 交通 |
価格 利回り |
築年月 築年数 構造 |
専有建物面積 土地面積 |
所在階 階数 総戸数 |
資料請求 |
|---|









検討リストに移動